1908_Site Plan.png
LIVING ROOM MILLWORK.png
1908_876 Pacific St_V16 - Whitemodel 11-REDUCED.jpg
1908_876 Pacific St_V16 - Whitemodel 8 - REDUCED.jpg
2020-01-17 12.05.20-1.jpg
IMG_3479.jpeg
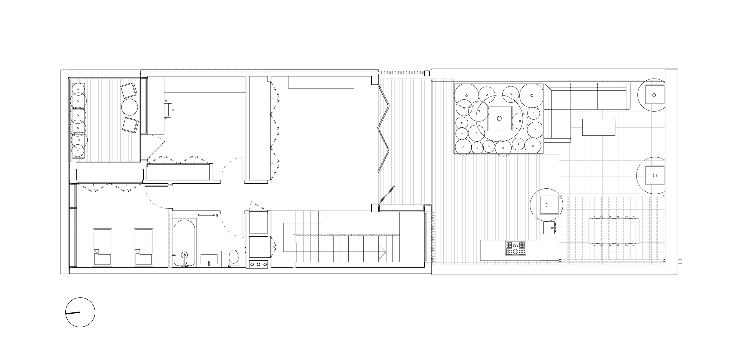
fourth floor plan.png
1908_876 Pacific St_V16 - Whitemodel 7 - reduced.jpg
SK-02 Elevation _ Layout.png

Prospect Heights House

Location:

Brooklyn, New York

Client:

Private

Type:

Two-Story Addition

Project Date:

Summer 2019 - Present

Project Team:

Pablo de Miguel, Brett Barshay

MEP Engineer:

Crosetto Engineering

Expediter:

Ida Galea, AIA

Structural Engineer:

Santora Engineering

Contractor:

TBD

Photography:

TBD